Stora salen
Bild: Stora salen med scenljus
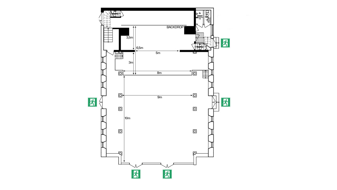
Stora salen är en flexibel kulturlokal med en scen som är perfekt för olika former av dans-, musik- och teaterframträdanden. I anslutning till scenen finns en loge med dusch och toalett. Observera att logen har en något låg takhöjd, 175 cm på de lägsta partierna och 197 cm som högst. Publikkapaciteten är 120 vid sittande publik. Vid stående publik finns en begränsning i ventilation som tillåter max 200 personer i lokalen. Dock kan åtgärder sättas in för att utöka publikantalet till 300 stående, hör av dig till oss så berättar vi mer. Lokalen är fullt utrustad med PA och scenljus, för mer info om teknik se separat bilaga. Lokalen upplåts obemannad en teknikgenomgång med tekniker vid ett tillfälle ingår.

Bild: Stora salen med grundbelysning
Bild: Scenljus